AZEST関内 3F
-
仲介手数料オフ
| 賃料 | 78,500円 | 管理費 | 10,000円 | 敷金 | 0.0ヶ月 | 礼金 | 1.0ヶ月 |
|---|---|---|---|---|---|---|---|
| 仲介料 | 0.0ヶ月 | フリーレント | 0.0ヶ月 | ||||
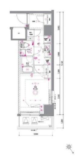
| 入居日 | 2026年2月下旬 | 間取り | 1R | 面積 | 20.06m2 | 階数 | 3/11階 |
|---|
| 方角 | 北東 | 築年月 | 2023年2月 | 交通 | 京急本線「日ノ出町」駅徒歩5分 詳細 |
|---|
| 賃料 | 78,500円 | 共益費/管理費 | 10,000円 |
|---|---|---|---|
| 敷金 | 0.0ヶ月 | 礼金 | 1.0ヶ月 |
| フリーレント | 0.0ヶ月 | 仲介料 | 0.0ヶ月 |
| 間取り | 1R | 築年数 | 2023年2月 (築3年) |
| 方角 | 北東 | 賃借種別 | 普通賃貸借 |
| 建物階数 | 地上11階 | 建物構造 | RC造 |
| 占有面積 | 20.06m2 | 小学校エリア | 東小学校 |
| 部屋1 | 洋室 7.3帖 |
|---|
東京都港区麻布十番1-7-1-6F
国土交通大臣(1)第10590号
国土交通大臣(1)第10590号
- 受付時間
- 10:00~19:00【水曜定休】
AZEST関内の物件概要
| 物件名 | AZEST関内 | ||
|---|---|---|---|
| 物件種別 | マンション | 問合せ番号 | 11333 |
| 所在地 | 横浜市中区末吉町1-12-1 | ||
| 交通 |
京急本線「日ノ出町」駅徒歩5分 ブルーライン「伊勢佐木長者町」駅徒歩8分 京急本線「黄金町」駅徒歩8分 JR根岸線「関内」駅徒歩11分 ブルーライン「関内」駅徒歩11分 |
||
| 物件特徴 | ペット可 分譲賃貸 | ||
| 備考 |
■ペット可メモ 小型犬又は猫2匹まで(成長時体長50cm程度)、敷金1ヶ月積増(退去時にペットクリーニング費用として敷金償却) |
||
| 賃料 | 78,500円 | 共益費/管理費 | 10,000円 |
|---|---|---|---|
| 敷金 | 0.0ヶ月 | 礼金 | 1.0ヶ月 |
| フリーレント | 0.0ヶ月 | 仲介料 | 0.0ヶ月 |
| 更新料 | 1.0ヶ月 | ||
| 間取り | 1R | 築年数 | 2023年2月 (築3年) |
|---|---|---|---|
| 方角 | 北東 | 賃借種別 | 普通賃貸借 |
| 建物階数 | 地上11階 | 建物構造 | RC造 |
| 占有面積 | 20.06m2 | 小学校エリア | 東小学校 |
| 入居日 | 2026年2月下旬 | ||
| 登録日 | 2026年01月14日 | 更新日 | 2026年01月24日 |
| 保険 | 要加入 | 保証会社 | 利用必須 |
| 取引形態 | 媒介 | ||
AZEST関内の設備一覧
| 物件設備 |
|
|---|---|
| 部屋設備 |
|
AZEST関内の地図
AZEST関内の募集中の住戸一覧
所在階
間取り
面積
賃料
管理費
管理費
敷金
礼金
礼金
仲介手数料
フリーレント
問合せ
AZEST関内へのお問い合わせはリテラプロパティーズまで
お問い合わせは、お電話かメールフォームより受け付けております。
東京都港区麻布十番1-7-1-6F
国土交通大臣(1)第10590号
国土交通大臣(1)第10590号
- 受付時間
- 10:00~19:00【水曜定休】
物件募集に関する注意事項
※掲載情報が現況と異なる場合は、現況が優先となります。
※キャンペーン情報は予告なく変更・終了する場合がございます。詳細はお問い合わせください。
※部屋により敷金・礼金・キャンペーンの内容が異なる場合がございますので、詳しい情報は各部屋ページにてご確認ください。
※分譲賃貸は部屋によって所有者が異なる為、内装や設備が変更されている場合がございます。
※ペットの飼育やSOHO利用の可否に関しては、建物管理側が許可を出していても、所有者の意向により禁止とされている場合もございますのでご注意ください。

