麻布台ヒルズレジデンスB 28F
| 賃料 | 1,400,000円 | 管理費 | 0円 | 敷金 | 2.0ヶ月 | 礼金 | 1.0ヶ月 |
|---|---|---|---|---|---|---|---|
| キャッシュバック | 0.0ヶ月 | 仲介料 | 0.9ヶ月 | フリーレント | 0.0ヶ月 | ||
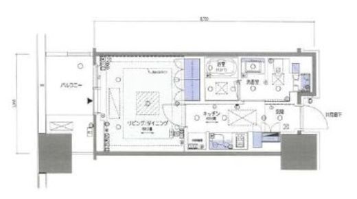
| 入居日 | 2025年12月下旬 | 間取り | 2LDK +WIC +SIC | 面積 | 108.46m2 | 階数 | 28/64階 |
|---|
| 方角 | 南 | 築年月 | 2025年8月 | 交通 | 東京メトロ南北線「六本木一丁目」駅徒歩3分 詳細 |
|---|
| 賃料 | 1,400,000円 | 共益費/管理費 | 0円 |
|---|---|---|---|
| 敷金 | 2.0ヶ月 | 礼金 | 1.0ヶ月 |
| フリーレント | 0.0ヶ月 | 仲介料 | 0.9ヶ月 |
| キャッシュバック | 0.0ヶ月 | ||
| 間取り | 2LDK | 築年数 | 2025年8月 (新築) |
| 方角 | 南 | 賃借種別 | 定期借家 (2年間) |
| 建物階数 | 地上64階/地下5階 | 建物構造 | RC造 |
| 占有面積 | 108.46m2 | 小学校エリア | 麻布小学校 |
| 部屋1 | LDK 26帖 |
|---|---|
| 部屋2 | 洋室 11.1帖 |
| 部屋3 | 洋室 8帖 |
東京都中央区銀座7-15-11 銀座7ビルディング10F
- 受付時間
- 10:00~20:00【年中無休】
麻布台ヒルズレジデンスBの物件概要
| 物件名 | 麻布台ヒルズレジデンスB | ||
|---|---|---|---|
| 物件種別 | マンション | 問合せ番号 | 12900 |
| 所在地 | 港区麻布台1 | ||
| 交通 |
東京メトロ南北線「六本木一丁目」駅徒歩3分 東京メトロ日比谷線「神谷町」駅徒歩5分 |
||
| 物件特徴 | 新築 ペット可 分譲賃貸 タワー ハイクラス | ||
| 備考 | |||
| 賃料 | 1,400,000円 | 共益費/管理費 | 0円 |
|---|---|---|---|
| 敷金 | 2.0ヶ月 | 礼金 | 1.0ヶ月 |
| フリーレント | 0.0ヶ月 | 仲介料 | 0.9ヶ月 |
| 更新料 | 0.0ヶ月 | ||
| 間取り | 2LDK | 築年数 | 2025年8月 (新築) |
|---|---|---|---|
| 方角 | 南 | 賃借種別 | 定期借家 (2年間) |
| 建物階数 | 地上64階/地下5階 | 建物構造 | RC造 |
| 占有面積 | 108.46m2 | 小学校エリア | 麻布小学校 |
| 入居日 | 2025年12月下旬 | ||
| 登録日 | 2026年01月14日 | 更新日 | 2026年01月14日 |
| 保険 | 要加入 | 保証会社 | 利用必須 |
| 取引形態 | 媒介 | ||
麻布台ヒルズレジデンスBの設備一覧
| 物件設備 |
|
|---|---|
| 部屋設備 |
|
麻布台ヒルズレジデンスBの地図
麻布台ヒルズレジデンスBの募集中の住戸一覧
所在階
間取り
面積
賃料
管理費
管理費
敷金
礼金
礼金
仲介手数料
フリーレント
キャッシュバック
キャッシュバック
問合せ
New
定借
- 敷金
/礼金 -
2.0ヶ月
/
0.0ヶ月
- 仲介手数料
-
1.0ヶ月0.9ヶ月
41,000円お得
- フリーレント
キャッシュバック -
0.0ヶ月
0.0ヶ月
- 所在階
- 10階
- 間取り
- 1R +WIC
- 面積
- 33.44m2
New
定借
- 敷金
/礼金 -
2.0ヶ月
/
1.0ヶ月
- 仲介手数料
-
1.0ヶ月0.9ヶ月
42,000円お得
- フリーレント
キャッシュバック -
0.0ヶ月
0.0ヶ月
- 所在階
- 10階
- 間取り
- 1K
- 面積
- 36.05m2
New
定借
- 敷金
/礼金 -
2.0ヶ月
/
1.0ヶ月
- 仲介手数料
-
1.0ヶ月0.9ヶ月
57,400円お得
- フリーレント
キャッシュバック -
0.0ヶ月
0.0ヶ月
- 所在階
- 29階
- 間取り
- 1K
- 面積
- 38.06m2
New
定借
- 敷金
/礼金 -
2.0ヶ月
/
1.0ヶ月
- 仲介手数料
-
1.0ヶ月0.9ヶ月
65,000円お得
- フリーレント
キャッシュバック -
0.0ヶ月
0.0ヶ月
- 所在階
- 21階
- 間取り
- 1R
- 面積
- 44.65m2
New
定借
- 敷金
/礼金 -
2.0ヶ月
/
0.0ヶ月
- 仲介手数料
-
1.0ヶ月0.9ヶ月
69,000円お得
- フリーレント
キャッシュバック -
0.0ヶ月
0.0ヶ月
- 所在階
- 28階
- 間取り
- 1LDK +WIC +SIC
- 面積
- 59.88m2
New
定借
- 敷金
/礼金 -
2.0ヶ月
/
0.0ヶ月
- 仲介手数料
-
1.0ヶ月0.9ヶ月
70,000円お得
- フリーレント
キャッシュバック -
0.0ヶ月
0.0ヶ月
- 所在階
- 28階
- 間取り
- 1LDK +SIC
- 面積
- 59.88m2
New
定借
- 敷金
/礼金 -
2.0ヶ月
/
1.0ヶ月
- 仲介手数料
-
1.0ヶ月0.9ヶ月
70,000円お得
- フリーレント
キャッシュバック -
0.0ヶ月
0.0ヶ月
- 所在階
- 5階
- 間取り
- 1LDK
- 面積
- 60.9m2
New
定借
- 敷金
/礼金 -
2.0ヶ月
/
1.0ヶ月
- 仲介手数料
-
1.0ヶ月0.9ヶ月
70,000円お得
- フリーレント
キャッシュバック -
0.0ヶ月
0.0ヶ月
- 所在階
- 7階
- 間取り
- 1LDK
- 面積
- 60.9m2
New
定借
- 敷金
/礼金 -
2.0ヶ月
/
0.0ヶ月
- 仲介手数料
-
1.0ヶ月0.9ヶ月
72,000円お得
- フリーレント
キャッシュバック -
0.0ヶ月
0.0ヶ月
- 所在階
- 7階
- 間取り
- 1LDK +SIC
- 面積
- 55.36m2
New
定借
- 敷金
/礼金 -
2.0ヶ月
/
0.0ヶ月
- 仲介手数料
-
1.0ヶ月0.9ヶ月
73,000円お得
- フリーレント
キャッシュバック -
0.0ヶ月
0.0ヶ月
- 所在階
- 8階
- 間取り
- 1LDK +SIC
- 面積
- 55.36m2
New
定借
- 敷金
/礼金 -
2.0ヶ月
/
1.0ヶ月
- 仲介手数料
-
1.0ヶ月0.9ヶ月
73,000円お得
- フリーレント
キャッシュバック -
0.0ヶ月
0.0ヶ月
- 所在階
- 8階
- 間取り
- 1LDK
- 面積
- 60.9m2
New
定借
- 敷金
/礼金 -
2.0ヶ月
/
1.0ヶ月
- 仲介手数料
-
1.0ヶ月0.9ヶ月
78,000円お得
- フリーレント
キャッシュバック -
0.0ヶ月
0.0ヶ月
- 所在階
- 21階
- 間取り
- 1LDK +SIC
- 面積
- 55.36m2
New
定借
- 敷金
/礼金 -
2.0ヶ月
/
1.0ヶ月
- 仲介手数料
-
1.0ヶ月0.9ヶ月
80,000円お得
- フリーレント
キャッシュバック -
0.0ヶ月
0.0ヶ月
- 所在階
- 20階
- 間取り
- 2LDK
- 面積
- 67.06m2
New
定借
- 敷金
/礼金 -
2.0ヶ月
/
0.0ヶ月
- 仲介手数料
-
1.0ヶ月0.9ヶ月
81,000円お得
- フリーレント
キャッシュバック -
0.0ヶ月
0.0ヶ月
- 所在階
- 8階
- 間取り
- 1LDK
- 面積
- 63.57m2
New
定借
- 敷金
/礼金 -
2.0ヶ月
/
0.0ヶ月
- 仲介手数料
-
1.0ヶ月0.9ヶ月
90,000円お得
- フリーレント
キャッシュバック -
0.0ヶ月
0.0ヶ月
- 所在階
- 7階
- 間取り
- 2LDK +SIC
- 面積
- 67.06m2
New
- 敷金
/礼金 -
2.0ヶ月
/
1.0ヶ月
- 仲介手数料
-
1.0ヶ月0.9ヶ月
118,000円お得
- フリーレント
キャッシュバック -
0.0ヶ月
0.0ヶ月
- 所在階
- 30階
- 間取り
- 2LDK +SIC
- 面積
- 78.58m2
New
定借
- 敷金
/礼金 -
3.0ヶ月
/
1.0ヶ月
- 仲介手数料
-
1.0ヶ月0.9ヶ月
140,000円お得
- フリーレント
キャッシュバック -
0.0ヶ月
0.0ヶ月
- 所在階
- 21階
- 間取り
- 2LDK +WIC +SIC
- 面積
- 95.45m2
New
定借
- 敷金
/礼金 -
2.0ヶ月
/
1.0ヶ月
- 仲介手数料
-
1.0ヶ月0.9ヶ月
175,000円お得
- フリーレント
キャッシュバック -
0.0ヶ月
0.0ヶ月
- 所在階
- 28階
- 間取り
- 3SLDK +WIC +SIC
- 面積
- 135.14m2
New
定借
- 敷金
/礼金 -
2.0ヶ月
/
1.0ヶ月
- 仲介手数料
-
1.0ヶ月0.9ヶ月
210,000円お得
- フリーレント
キャッシュバック -
0.0ヶ月
0.0ヶ月
- 所在階
- 9階
- 間取り
- 2LDK +WIC +SIC
- 面積
- 114.07m2
New
定借
- 敷金
/礼金 -
2.0ヶ月
/
1.0ヶ月
- 仲介手数料
-
1.0ヶ月0.9ヶ月
290,000円お得
- フリーレント
キャッシュバック -
0.0ヶ月
0.0ヶ月
- 所在階
- 28階
- 間取り
- 4LDK +WIC +SIC
- 面積
- 207.82m2
麻布台ヒルズレジデンスBへのお問い合わせはリテラプロパティーズまで
お問い合わせは、お電話かメールフォームより受け付けております。
東京都中央区銀座7-15-11 銀座7ビルディング10F
- 受付時間
- 10:00~20:00【年中無休】
物件募集に関する注意事項
※掲載情報が現況と異なる場合は、現況が優先となります。
※キャンペーン情報は予告なく変更・終了する場合がございます。詳細はお問い合わせください。
※部屋により敷金・礼金・キャンペーンの内容が異なる場合がございますので、詳しい情報は各部屋ページにてご確認ください。
※分譲賃貸は部屋によって所有者が異なる為、内装や設備が変更されている場合がございます。
※ペットの飼育やSOHO利用の可否に関しては、建物管理側が許可を出していても、所有者の意向により禁止とされている場合もございますのでご注意ください。

