河田町ガーデンクラブフロア 3502
-
仲介手数料オフ
-
礼金0
| 賃料 | 370,100円 | 管理費 | 10,000円 | 敷金 | 0.0ヶ月 | 礼金 | 0.0ヶ月 |
|---|---|---|---|---|---|---|---|
| キャッシュバック | 0.0ヶ月 | 仲介料 | 0.0ヶ月 | フリーレント | 0.0ヶ月 | ||
| 入居日 | 2025年11月下旬 | 間取り | 1LDK +WIC | 面積 | 73.15m2 | 階数 | 35/41階 |
|---|
| 方角 | 東 | 築年月 | 2003年3月 | 交通 | 都営新宿線「曙橋」駅徒歩4分 詳細 |
|---|
| 賃料 | 370,100円 | 共益費/管理費 | 10,000円 |
|---|---|---|---|
| 敷金 | 0.0ヶ月 | 礼金 | 0.0ヶ月 |
| フリーレント | 0.0ヶ月 | 仲介料 | 0.0ヶ月 |
| キャッシュバック | 0.0ヶ月 | ||
| 間取り | 1LDK | 築年数 | 2003年3月 (築23年) |
| 方角 | 東 | 賃借種別 | 普通賃貸借 |
| 建物階数 | 地上41階/地下2階 | 建物構造 | RC造 |
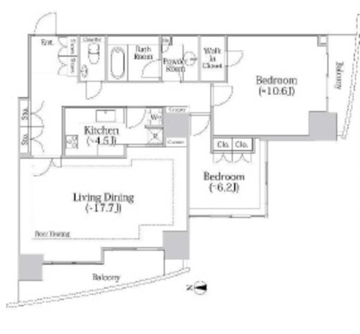
| 占有面積 | 73.15m2 | 小学校エリア | 牛込仲之小学校 |
| 部屋1 | LDK 23.7帖 |
|---|---|
| 部屋2 | 洋室 8.7帖 |
東京都中央区銀座7-15-11 銀座7ビルディング10F
- 受付時間
- 10:00~20:00【年中無休】
河田町ガーデンクラブフロアの物件概要
| 物件名 | 河田町ガーデンクラブフロア | ||
|---|---|---|---|
| 物件種別 | マンション | 問合せ番号 | 13227 |
| 所在地 | 新宿区河田町3-51 | ||
| 交通 |
都営新宿線「曙橋」駅徒歩4分 都営大江戸線「若松河田」駅徒歩6分 東京メトロ丸ノ内線「四谷三丁目」駅徒歩15分 |
||
| 物件特徴 | タワー ハイクラス デザイナーズ | ||
| 備考 | |||
| 賃料 | 370,100円 | 共益費/管理費 | 10,000円 |
|---|---|---|---|
| 敷金 | 0.0ヶ月 | 礼金 | 0.0ヶ月 |
| フリーレント | 0.0ヶ月 | 仲介料 | 0.0ヶ月 |
| 更新料 | 1.0ヶ月 | ||
| 間取り | 1LDK | 築年数 | 2003年3月 (築23年) |
|---|---|---|---|
| 方角 | 東 | 賃借種別 | 普通賃貸借 |
| 建物階数 | 地上41階/地下2階 | 建物構造 | RC造 |
| 占有面積 | 73.15m2 | 小学校エリア | 牛込仲之小学校 |
| 入居日 | 2025年11月下旬 | ||
| 登録日 | 2026年01月14日 | 更新日 | 2025年09月30日 |
| 保険 | 要加入 | 保証会社 | 利用必須 |
| 取引形態 | 媒介 | ||
河田町ガーデンクラブフロアの設備一覧
| 物件設備 |
|
|---|---|
| 部屋設備 |
|
河田町ガーデンクラブフロアの地図
河田町ガーデンクラブフロアの募集中の住戸一覧
所在階
間取り
面積
賃料
管理費
管理費
敷金
礼金
礼金
仲介手数料
フリーレント
キャッシュバック
キャッシュバック
問合せ
河田町ガーデンクラブフロアへのお問い合わせはリテラプロパティーズまで
お問い合わせは、お電話かメールフォームより受け付けております。
東京都中央区銀座7-15-11 銀座7ビルディング10F
- 受付時間
- 10:00~20:00【年中無休】
物件募集に関する注意事項
※掲載情報が現況と異なる場合は、現況が優先となります。
※キャンペーン情報は予告なく変更・終了する場合がございます。詳細はお問い合わせください。
※部屋により敷金・礼金・キャンペーンの内容が異なる場合がございますので、詳しい情報は各部屋ページにてご確認ください。
※分譲賃貸は部屋によって所有者が異なる為、内装や設備が変更されている場合がございます。
※ペットの飼育やSOHO利用の可否に関しては、建物管理側が許可を出していても、所有者の意向により禁止とされている場合もございますのでご注意ください。

