ガーデニエール砧レジデンス 919
| 賃料 | 246,000円 | 管理費 | 10,000円 | 敷金 | 1.0ヶ月 | 礼金 | 2.0ヶ月 |
|---|---|---|---|---|---|---|---|
| キャッシュバック | 0.0ヶ月 | 仲介料 | 0.9ヶ月 | フリーレント | 0.0ヶ月 | ||
| 入居日 | 2026年1月 | 間取り | 1SLDK | 面積 | 60.37m2 | 階数 | 9/10階 |
|---|
| 方角 | 西 | 築年月 | 2008年2月 | 交通 | 小田急線「千歳船橋」駅徒歩10分 詳細 |
|---|
| 賃料 | 246,000円 | 共益費/管理費 | 10,000円 |
|---|---|---|---|
| 敷金 | 1.0ヶ月 | 礼金 | 2.0ヶ月 |
| フリーレント | 0.0ヶ月 | 仲介料 | 0.9ヶ月 |
| キャッシュバック | 0.0ヶ月 | ||
| 間取り | 1SLDK | 築年数 | 2008年2月 (築18年) |
| 方角 | 西 | 賃借種別 | 定期借家 (2年間) |
| 建物階数 | 地上10階/地下1階 | 建物構造 | RC造 |
| 占有面積 | 60.37m2 | 小学校エリア | 山野小学校 |
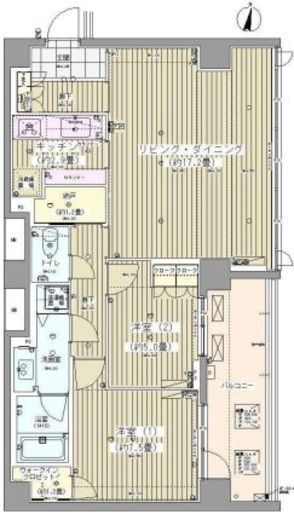
| 部屋1 | LDK 15.8帖 |
|---|---|
| 部屋2 | 洋室 7.1帖 |
| 部屋3 | サービスルーム 0.6帖 |
| 部屋4 | その他 3帖 |
東京都中央区銀座7-15-11 銀座7ビルディング10F
- 受付時間
- 10:00~20:00【年中無休】
ガーデニエール砧レジデンスの物件概要
| 物件名 | ガーデニエール砧レジデンス | ||
|---|---|---|---|
| 物件種別 | マンション | 問合せ番号 | 17702 |
| 所在地 | 世田谷区砧2-14-12 | ||
| 交通 |
小田急線「千歳船橋」駅徒歩10分 小田急線「祖師ヶ谷大蔵」駅徒歩10分 |
||
| 物件特徴 | ペット可 | ||
| 備考 | |||
| 賃料 | 246,000円 | 共益費/管理費 | 10,000円 |
|---|---|---|---|
| 敷金 | 1.0ヶ月 | 礼金 | 2.0ヶ月 |
| フリーレント | 0.0ヶ月 | 仲介料 | 0.9ヶ月 |
| 更新料 | 0.0ヶ月 | ||
| 間取り | 1SLDK | 築年数 | 2008年2月 (築18年) |
|---|---|---|---|
| 方角 | 西 | 賃借種別 | 定期借家 (2年間) |
| 建物階数 | 地上10階/地下1階 | 建物構造 | RC造 |
| 占有面積 | 60.37m2 | 小学校エリア | 山野小学校 |
| 入居日 | 2026年1月 | ||
| 登録日 | 2026年01月14日 | 更新日 | 2025年10月25日 |
| 保険 | 要加入 | 保証会社 | 利用必須 |
| 取引形態 | 媒介 | ||
ガーデニエール砧レジデンスの設備一覧
| 物件設備 |
|
|---|---|
| 部屋設備 |
|
ガーデニエール砧レジデンスの地図
ガーデニエール砧レジデンスの募集中の住戸一覧
所在階
間取り
面積
賃料
管理費
管理費
敷金
礼金
礼金
仲介手数料
フリーレント
キャッシュバック
キャッシュバック
問合せ
New
- 敷金
/礼金 -
1.0ヶ月
/
2.0ヶ月
- 仲介手数料
-
1.0ヶ月0.9ヶ月
18,200円お得
- フリーレント
キャッシュバック -
0.0ヶ月
0.0ヶ月
- 所在階
- 3階
- 間取り
- 1LDK +WIC
- 面積
- 43.69m2
New
- 敷金
/礼金 -
1.0ヶ月
/
2.0ヶ月
- 仲介手数料
-
1.0ヶ月0.9ヶ月
25,500円お得
- フリーレント
キャッシュバック -
0.0ヶ月
0.0ヶ月
- 所在階
- 7階
- 間取り
- 2LDK
- 面積
- 63.6m2
New
- 敷金
/礼金 -
1.0ヶ月
/
2.0ヶ月
- 仲介手数料
-
1.0ヶ月0.9ヶ月
29,400円お得
- フリーレント
キャッシュバック -
0.0ヶ月
0.0ヶ月
- 所在階
- 7階
- 間取り
- 1SLDK
- 面積
- 67.2m2
ガーデニエール砧レジデンスへのお問い合わせはリテラプロパティーズまで
お問い合わせは、お電話かメールフォームより受け付けております。
東京都中央区銀座7-15-11 銀座7ビルディング10F
- 受付時間
- 10:00~20:00【年中無休】
物件募集に関する注意事項
※掲載情報が現況と異なる場合は、現況が優先となります。
※キャンペーン情報は予告なく変更・終了する場合がございます。詳細はお問い合わせください。
※部屋により敷金・礼金・キャンペーンの内容が異なる場合がございますので、詳しい情報は各部屋ページにてご確認ください。
※分譲賃貸は部屋によって所有者が異なる為、内装や設備が変更されている場合がございます。
※ペットの飼育やSOHO利用の可否に関しては、建物管理側が許可を出していても、所有者の意向により禁止とされている場合もございますのでご注意ください。

