エスティメゾン大森 602
-
仲介手数料オフ
| 賃料 | 136,000円 | 管理費 | 10,000円 | 敷金 | 1.0ヶ月 | 礼金 | 1.0ヶ月 |
|---|---|---|---|---|---|---|---|
| 仲介料 | 0.0ヶ月 | フリーレント | 0.0ヶ月 | ||||
| 入居日 | 相談 | 間取り | 1DK | 面積 | 25.01m2 | 階数 | 6/14階 |
|---|
| 方角 | 東 | 築年月 | 2024年1月 | 交通 | JR京浜東北線「大森」駅徒歩5分 詳細 |
|---|
| 賃料 | 136,000円 | 共益費/管理費 | 10,000円 |
|---|---|---|---|
| 敷金 | 1.0ヶ月 | 礼金 | 1.0ヶ月 |
| フリーレント | 0.0ヶ月 | 仲介料 | 0.0ヶ月 |
| 間取り | 1DK | 築年数 | 2024年1月 (築2年) |
| 方角 | 東 | 賃借種別 | 普通賃貸借 |
| 建物階数 | 地上14階 | 建物構造 | RC造 |
| 占有面積 | 25.01m2 | 小学校エリア | 入新井第一小学校 |
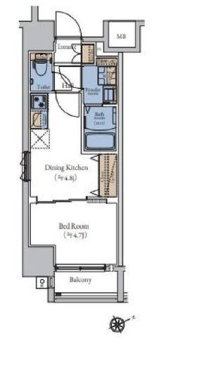
| 部屋1 | DK 4.6帖 |
|---|---|
| 部屋2 | 洋室 4.5帖 |
東京都港区麻布十番1-7-1-6F
国土交通大臣(1)第10590号
国土交通大臣(1)第10590号
- 受付時間
- 10:00~19:00【水曜定休】
エスティメゾン大森の物件概要
| 賃料 | 136,000円 | 共益費/管理費 | 10,000円 |
|---|---|---|---|
| 敷金 | 1.0ヶ月 | 礼金 | 1.0ヶ月 |
| フリーレント | 0.0ヶ月 | 仲介料 | 0.0ヶ月 |
| 更新料 | 1.0ヶ月 | ||
| 間取り | 1DK | 築年数 | 2024年1月 (築2年) |
|---|---|---|---|
| 方角 | 東 | 賃借種別 | 普通賃貸借 |
| 建物階数 | 地上14階 | 建物構造 | RC造 |
| 占有面積 | 25.01m2 | 小学校エリア | 入新井第一小学校 |
| 入居日 | 相談 | ||
| 登録日 | 2026年01月14日 | 更新日 | 2026年02月27日 |
| 保険 | 要加入 | 保証会社 | 利用必須 |
| 取引形態 | 媒介 | ||
エスティメゾン大森の設備一覧
| 物件設備 |
|
|---|---|
| 部屋設備 |
|
エスティメゾン大森の地図
エスティメゾン大森の募集中の住戸一覧
エスティメゾン大森へのお問い合わせはリテラプロパティーズまで
お問い合わせは、お電話かメールフォームより受け付けております。
東京都港区麻布十番1-7-1-6F
国土交通大臣(1)第10590号
国土交通大臣(1)第10590号
- 受付時間
- 10:00~19:00【水曜定休】
物件募集に関する注意事項
※掲載情報が現況と異なる場合は、現況が優先となります。
※キャンペーン情報は予告なく変更・終了する場合がございます。詳細はお問い合わせください。
※部屋により敷金・礼金・キャンペーンの内容が異なる場合がございますので、詳しい情報は各部屋ページにてご確認ください。
※分譲賃貸は部屋によって所有者が異なる為、内装や設備が変更されている場合がございます。
※ペットの飼育やSOHO利用の可否に関しては、建物管理側が許可を出していても、所有者の意向により禁止とされている場合もございますのでご注意ください。

