RJRプレシア蒲田 610
-
仲介手数料オフ
-
礼金0
| 賃料 | 154,000円 | 管理費 | 10,000円 | 敷金 | 1.0ヶ月 | 礼金 | 0.0ヶ月 |
|---|---|---|---|---|---|---|---|
| 仲介料 | 0.0ヶ月 | フリーレント | 0.0ヶ月 | ||||
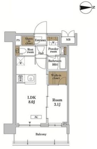
| 入居日 | 2026年4月中旬 | 間取り | 1DK | 面積 | 29.15m2 | 階数 | 6/8階 |
|---|
| 方角 | 西 | 築年月 | 2026年4月 | 交通 | JR京浜東北線「蒲田」駅徒歩10分 詳細 |
|---|
| 賃料 | 154,000円 | 共益費/管理費 | 10,000円 |
|---|---|---|---|
| 敷金 | 1.0ヶ月 | 礼金 | 0.0ヶ月 |
| フリーレント | 0.0ヶ月 | 仲介料 | 0.0ヶ月 |
| 間取り | 1DK | 築年数 | 2026年4月 (新築) |
| 方角 | 西 | 賃借種別 | 普通賃貸借 |
| 建物階数 | 地上8階 | 建物構造 | RC造 |
| 占有面積 | 29.15m2 | 小学校エリア | おなづか小学校 |
| 部屋1 | DK 7.1帖 |
|---|---|
| 部屋2 | 洋室 4.3帖 |
東京都港区麻布十番1-7-1-6F
国土交通大臣(1)第10590号
国土交通大臣(1)第10590号
- 受付時間
- 10:00~19:00【水曜定休】
RJRプレシア蒲田の物件概要
| 物件名 | RJRプレシア蒲田 | ||
|---|---|---|---|
| 物件種別 | マンション | 問合せ番号 | 19275 |
| 所在地 | 大田区西蒲田4-15-11 | ||
| 交通 |
JR京浜東北線「蒲田」駅徒歩10分 東急池上線「蒲田」駅徒歩11分 |
||
| 物件特徴 | 新築 ペット可 | ||
| 備考 |
■ペット可メモ 小型犬or猫1匹まで |
||
| 賃料 | 154,000円 | 共益費/管理費 | 10,000円 |
|---|---|---|---|
| 敷金 | 1.0ヶ月 | 礼金 | 0.0ヶ月 |
| フリーレント | 0.0ヶ月 | 仲介料 | 0.0ヶ月 |
| 更新料 | 1.0ヶ月 | ||
| 間取り | 1DK | 築年数 | 2026年4月 (新築) |
|---|---|---|---|
| 方角 | 西 | 賃借種別 | 普通賃貸借 |
| 建物階数 | 地上8階 | 建物構造 | RC造 |
| 占有面積 | 29.15m2 | 小学校エリア | おなづか小学校 |
| 入居日 | 2026年4月中旬 | ||
| 登録日 | 2026年02月27日 | 更新日 | 2026年02月27日 |
| 保険 | 要加入 | 保証会社 | 利用必須 |
| 取引形態 | 媒介 | ||
RJRプレシア蒲田の設備一覧
| 物件設備 |
|
|---|---|
| 部屋設備 |
|
RJRプレシア蒲田の地図
RJRプレシア蒲田の募集中の住戸一覧
所在階
間取り
面積
賃料
管理費
管理費
敷金
礼金
礼金
仲介手数料
フリーレント
問合せ
RJRプレシア蒲田へのお問い合わせはリテラプロパティーズまで
お問い合わせは、お電話かメールフォームより受け付けております。
東京都港区麻布十番1-7-1-6F
国土交通大臣(1)第10590号
国土交通大臣(1)第10590号
- 受付時間
- 10:00~19:00【水曜定休】
物件募集に関する注意事項
※掲載情報が現況と異なる場合は、現況が優先となります。
※キャンペーン情報は予告なく変更・終了する場合がございます。詳細はお問い合わせください。
※部屋により敷金・礼金・キャンペーンの内容が異なる場合がございますので、詳しい情報は各部屋ページにてご確認ください。
※分譲賃貸は部屋によって所有者が異なる為、内装や設備が変更されている場合がございます。
※ペットの飼育やSOHO利用の可否に関しては、建物管理側が許可を出していても、所有者の意向により禁止とされている場合もございますのでご注意ください。

