URBANLINK護国寺 421
-
仲介手数料オフ
-
礼金0
| 賃料 | 126,000円 | 管理費 | 15,000円 | 敷金 | 0.0ヶ月 | 礼金 | 0.0ヶ月 |
|---|---|---|---|---|---|---|---|
| キャッシュバック | 0.0ヶ月 | 仲介料 | 0.0ヶ月 | フリーレント | 0.0ヶ月 | ||
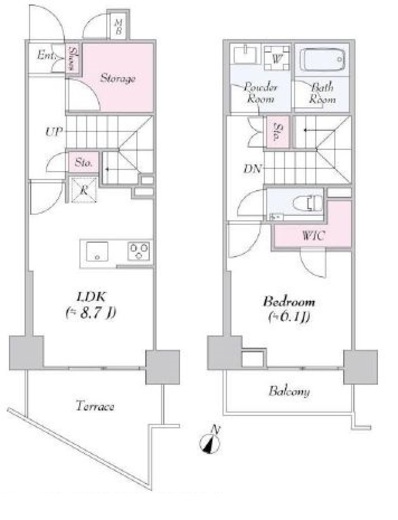
| 入居日 | 2026年2月上旬 | 間取り | 1K | 面積 | 25.44m2 | 階数 | 4/6階 |
|---|
| 方角 | 築年月 | 2024年1月 | 交通 | 東京メトロ有楽町線「護国寺」駅徒歩5分 詳細 |
|---|
| 賃料 | 126,000円 | 共益費/管理費 | 15,000円 |
|---|---|---|---|
| 敷金 | 0.0ヶ月 | 礼金 | 0.0ヶ月 |
| フリーレント | 0.0ヶ月 | 仲介料 | 0.0ヶ月 |
| キャッシュバック | 0.0ヶ月 | ||
| 間取り | 1K | 築年数 | 2024年1月 (築2年) |
| 方角 | 賃借種別 | 普通賃貸借 | |
| 建物階数 | 地上6階 | 建物構造 | RC造 |
| 占有面積 | 25.44m2 | 小学校エリア | 関口台町小学校 |
| 部屋1 | 洋室 7帖 |
|---|
東京都中央区銀座7-15-11 銀座7ビルディング10F
- 受付時間
- 10:00~20:00【年中無休】
URBANLINK護国寺の物件概要
| 物件名 | URBANLINK護国寺 | ||
|---|---|---|---|
| 物件種別 | マンション | 問合せ番号 | 20846 |
| 所在地 | 文京区関口3-12-9 | ||
| 交通 |
東京メトロ有楽町線「護国寺」駅徒歩5分 東京メトロ有楽町線「江戸川橋」駅徒歩9分 東京メトロ丸ノ内線「茗荷谷」駅徒歩15分 |
||
| 物件特徴 | 低層 | ||
| 備考 | |||
| 賃料 | 126,000円 | 共益費/管理費 | 15,000円 |
|---|---|---|---|
| 敷金 | 0.0ヶ月 | 礼金 | 0.0ヶ月 |
| フリーレント | 0.0ヶ月 | 仲介料 | 0.0ヶ月 |
| 更新料 | 1.0ヶ月 | ||
| 間取り | 1K | 築年数 | 2024年1月 (築2年) |
|---|---|---|---|
| 方角 | 賃借種別 | 普通賃貸借 | |
| 建物階数 | 地上6階 | 建物構造 | RC造 |
| 占有面積 | 25.44m2 | 小学校エリア | 関口台町小学校 |
| 入居日 | 2026年2月上旬 | ||
| 登録日 | 2026年01月14日 | 更新日 | 2025年12月12日 |
| 保険 | 要加入 | 保証会社 | 利用必須 |
| 取引形態 | 媒介 | ||
URBANLINK護国寺の設備一覧
| 物件設備 |
|
|---|---|
| 部屋設備 |
|
URBANLINK護国寺の地図
URBANLINK護国寺の募集中の住戸一覧
所在階
間取り
面積
賃料
管理費
管理費
敷金
礼金
礼金
仲介手数料
フリーレント
キャッシュバック
キャッシュバック
問合せ
URBANLINK護国寺へのお問い合わせはリテラプロパティーズまで
お問い合わせは、お電話かメールフォームより受け付けております。
東京都中央区銀座7-15-11 銀座7ビルディング10F
- 受付時間
- 10:00~20:00【年中無休】
物件募集に関する注意事項
※掲載情報が現況と異なる場合は、現況が優先となります。
※キャンペーン情報は予告なく変更・終了する場合がございます。詳細はお問い合わせください。
※部屋により敷金・礼金・キャンペーンの内容が異なる場合がございますので、詳しい情報は各部屋ページにてご確認ください。
※分譲賃貸は部屋によって所有者が異なる為、内装や設備が変更されている場合がございます。
※ペットの飼育やSOHO利用の可否に関しては、建物管理側が許可を出していても、所有者の意向により禁止とされている場合もございますのでご注意ください。

