日神デュオステージ浅草松が谷
(更新日:01月14日)
-
仲介手数料オフ
-
礼金0
日神デュオステージ浅草松が谷の募集中住戸一覧
台東区松が谷2丁目に建つ「日神デュオステージ浅草松が谷」
交通はつくばエクスプレス「浅草駅」徒歩6分、JR山手線・東京メトロ銀座線・東京メトロ日比谷線「上野駅」・東京メトロ日比谷線「入谷駅」より徒歩12分。徒歩圏内には複数の駅があり通勤や通学などに便利な立地にございます。物件は2009年築、地上14階建て、総戸数64戸、鉄筋コンクリート造の分譲マンションです。共用部にはオートロックやモニター付きインターホンなどが備わっており、セキュリティ面も安心してお住まいいただけます。
日神デュオステージ浅草松が谷の物件概要
| 物件名 | 日神デュオステージ浅草松が谷 | ||
|---|---|---|---|
| 物件種別 | マンション | 問合せ番号 | 21278 |
| 状態 | 空きあり | 総戸数 | 64戸 |
| 所在地 | 台東区松が谷2-27-9 | ||
| 交通 |
つくばエクスプレス「浅草」駅徒歩6分 JR山手線「上野」駅徒歩12分 東京メトロ銀座線「上野」駅徒歩12分 東京メトロ日比谷線「上野」駅徒歩12分 東京メトロ日比谷線「入谷」駅徒歩12分 |
||
| 物件特徴 | ペット可 分譲賃貸 | ||
| 賃料 | 135000円 | 共益費/管理費 | 15000円 |
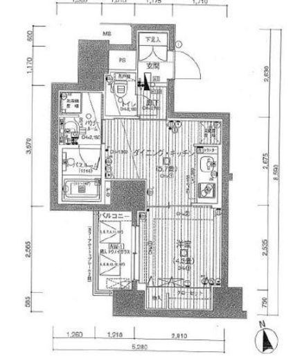
| 間取 | 1DK | 占有面積 | 30.02m2 |
| 建物階数 | 地上14階 | 建物構造 | RC造 |
| 築年数 | 2009年5月 (築17年) | 小学校エリア | 松葉小学校 |
| 保険 | 要加入 | 保証会社 | 利用必須 |
| 取引形態 | 媒介 | ||
| 備考 | 【バイク置き場】有 【駐輪場】有 |
||
日神デュオステージ浅草松が谷の設備一覧
| 物件設備 |
|
|---|
リテラプロパティーズまで
- 受付時間
- 10:00~20:00【年中無休】
日神デュオステージ浅草松が谷の地図
#日神デュオステージ浅草松が谷 は、2009年5月築の物件で、地上14階建てです。
ただいま、礼金なし、通常1か月分のところ仲介手数料最大無料でお得な物件です。
所在地は台東区松が谷2-27-9で、最寄り駅はつくばエクスプレス浅草駅で徒歩6分の距離にあり利便性の良い立地です。
オートロックが付いていますので、夜間も女性の方が安心して生活いただけます。エレベーター付きなので、荷物が多い日や上層階への移動もスムーズです。宅配ボックスが設置されていますので、不在時でも安心して荷物を受け取りいただけます。TV付きインターホンが設置されていますので、来訪者の確認もスムーズで安心です。自転車置き場がありますので、お買い物など近場の移動も便利に利用できます。バイク専用の駐輪スペースがありますので、ライダーの方にもおすすめです。敷地内にゴミ置き場があり、ゴミ出しがしやすく日々の負担を減らせます。
現在日神デュオステージ浅草松が谷の空室状況は、総戸数が64戸中1戸のお部屋が賃貸募集中で、
賃料は135000円の部屋があり、間取は1DKのお部屋があり、面積は30.02㎡の賃貸募集がございます。
※掲載情報が現況と異なる場合は、現況が優先となります。
※キャンペーン情報は予告なく変更・終了する場合がございます。詳細はお問い合わせください。
※部屋により敷金・礼金・キャンペーンの内容が異なる場合がございますので、詳しい情報は各部屋ページにてご確認ください。
※分譲賃貸は部屋によって所有者が異なる為、内装や設備が変更されている場合がございます。
※ペットの飼育やSOHO利用の可否に関しては、建物管理側が許可を出していても、所有者の意向により禁止とされている場合もございますのでご注意ください。
日神デュオステージ浅草松が谷の周辺物件
日神デュオステージ浅草松が谷と特徴の似た物件
| 交通 | 浅草駅 徒歩10分 |
|---|---|
| 賃料 | 173000円 - 270000円 |
| 専有面積 | 40.36m2 - 50.37m2 |
| 間取り | 1LDK - 2LDK |
| 築年月 | 2022年6月 (築4年) |
| 交通 | 上野駅 徒歩9分 |
|---|---|
| 賃料 | 142000円 - 282000円 |
| 専有面積 | 26.7m2 - 50.8m2 |
| 間取り | 1DK - 2LDK |
| 築年月 | 2022年9月 (築4年) |
| 交通 | 上野駅 徒歩10分 |
|---|---|
| 賃料 | 128000円 - 135000円 |
| 専有面積 | 25.2m2 |
| 間取り | 1DK - 1DK |
| 築年月 | 2022年9月 (築4年) |



お気に入りに登録しました。