ドゥ・トゥール 37F
| 賃料 | 420,000円 | 管理費 | 20,000円 | 敷金 | 1.0ヶ月 | 礼金 | 1.0ヶ月 |
|---|---|---|---|---|---|---|---|
| キャッシュバック | 0.0ヶ月 | 仲介料 | 0.9ヶ月 | フリーレント | 0.0ヶ月 | ||
| 入居日 | 2026年2月下旬 | 間取り | 2SLDK +WIC | 面積 | 70.7m2 | 階数 | 37/52階 |
|---|
| 方角 | 北 | 築年月 | 2015年9月 | 交通 | 都営大江戸線「勝どき」駅徒歩9分 詳細 |
|---|
| 賃料 | 420,000円 | 共益費/管理費 | 20,000円 |
|---|---|---|---|
| 敷金 | 1.0ヶ月 | 礼金 | 1.0ヶ月 |
| フリーレント | 0.0ヶ月 | 仲介料 | 0.9ヶ月 |
| キャッシュバック | 0.0ヶ月 | ||
| 間取り | 2SLDK | 築年数 | 2015年9月 (築11年) |
| 方角 | 北 | 賃借種別 | 普通賃貸借 |
| 建物階数 | 地上52階/地下1階 | 建物構造 | SRC造 |
| 占有面積 | 70.7m2 | 小学校エリア | 月島第三小学校 |
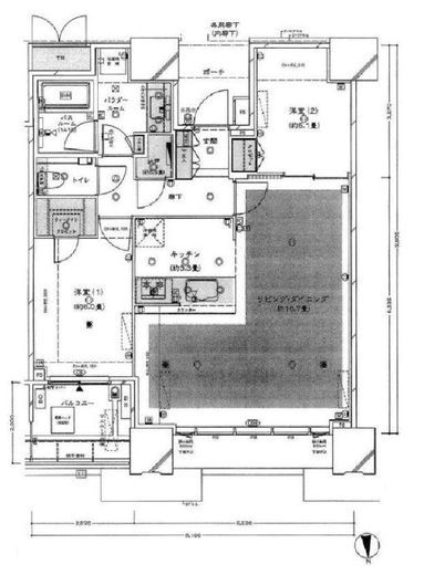
| 部屋1 | LDK 20帖 |
|---|---|
| 部屋2 | 洋室 6帖 |
| 部屋3 | 洋室 5.1帖 |
東京都中央区銀座7-15-11 銀座7ビルディング10F
- 受付時間
- 10:00~20:00【年中無休】
ドゥ・トゥールの物件概要
| 物件名 | ドゥ・トゥール | ||
|---|---|---|---|
| 物件種別 | マンション | 問合せ番号 | 4597 |
| 所在地 | 中央区晴海3-13-1 | ||
| 交通 |
都営大江戸線「勝どき」駅徒歩9分 東京メトロ有楽町線「月島」駅徒歩15分 都営大江戸線「月島」駅徒歩15分 |
||
| 物件特徴 | 分譲賃貸 タワー ハイクラス | ||
| 備考 | |||
| 賃料 | 420,000円 | 共益費/管理費 | 20,000円 |
|---|---|---|---|
| 敷金 | 1.0ヶ月 | 礼金 | 1.0ヶ月 |
| フリーレント | 0.0ヶ月 | 仲介料 | 0.9ヶ月 |
| 更新料 | 1.0ヶ月 | ||
| 間取り | 2SLDK | 築年数 | 2015年9月 (築11年) |
|---|---|---|---|
| 方角 | 北 | 賃借種別 | 普通賃貸借 |
| 建物階数 | 地上52階/地下1階 | 建物構造 | SRC造 |
| 占有面積 | 70.7m2 | 小学校エリア | 月島第三小学校 |
| 入居日 | 2026年2月下旬 | ||
| 登録日 | 2026年01月14日 | 更新日 | 2025年11月29日 |
| 保険 | 要加入 | 保証会社 | 利用必須 |
| 取引形態 | 媒介 | ||
ドゥ・トゥールの設備一覧
| 物件設備 |
|
|---|---|
| 部屋設備 |
|
ドゥ・トゥールの地図
ドゥ・トゥールの募集中の住戸一覧
所在階
間取り
面積
賃料
管理費
管理費
敷金
礼金
礼金
仲介手数料
フリーレント
キャッシュバック
キャッシュバック
問合せ
New
定借
- 敷金
/礼金 -
2.0ヶ月
/
0.0ヶ月
- 仲介手数料
-
1.0ヶ月0.9ヶ月
22,660円お得
- フリーレント
キャッシュバック -
0.0ヶ月
0.0ヶ月
- 所在階
- 44階
- 間取り
- 1R
- 面積
- 32.34m2
New
定借
- 敷金
/礼金 -
2.0ヶ月
/
0.0ヶ月
- 仲介手数料
-
1.0ヶ月0.9ヶ月
24,750円お得
- フリーレント
キャッシュバック -
0.0ヶ月
0.0ヶ月
- 所在階
- 46階
- 間取り
- 1R
- 面積
- 33.72m2
New
- 敷金
/礼金 -
2.0ヶ月
/
1.0ヶ月
- 仲介手数料
-
1.0ヶ月0.9ヶ月
26,000円お得
- フリーレント
キャッシュバック -
0.0ヶ月
0.0ヶ月
- 所在階
- 43階
- 間取り
- 1LDK +WIC
- 面積
- 44.67m2
New
定借
- 敷金
/礼金 -
2.0ヶ月
/
0.0ヶ月
- 仲介手数料
-
1.0ヶ月0.9ヶ月
27,500円お得
- フリーレント
キャッシュバック -
0.0ヶ月
0.0ヶ月
- 所在階
- 44階
- 間取り
- 1LDK +WIC +SIC
- 面積
- 40.11m2
New
定借
- 敷金
/礼金 -
2.0ヶ月
/
0.0ヶ月
- 仲介手数料
-
1.0ヶ月0.9ヶ月
29,590円お得
- フリーレント
キャッシュバック -
0.0ヶ月
0.0ヶ月
- 所在階
- 44階
- 間取り
- 1LDK +WIC +SIC
- 面積
- 42.88m2
New
定借
- 敷金
/礼金 -
1.0ヶ月
/
1.0ヶ月
- 仲介手数料
-
1.0ヶ月0.9ヶ月
30,200円お得
- フリーレント
キャッシュバック -
0.0ヶ月
0.0ヶ月
- 所在階
- 31階
- 間取り
- 1LDK +WIC
- 面積
- 44.67m2
New
- 敷金
/礼金 -
1.0ヶ月
/
1.0ヶ月
- 仲介手数料
-
1.0ヶ月0.9ヶ月
32,000円お得
- フリーレント
キャッシュバック -
0.0ヶ月
0.0ヶ月
- 所在階
- 47階
- 間取り
- 1LDK +WIC
- 面積
- 48.02m2
New
定借
- 敷金
/礼金 -
2.0ヶ月
/
0.0ヶ月
- 仲介手数料
-
1.0ヶ月0.9ヶ月
33,100円お得
- フリーレント
キャッシュバック -
0.0ヶ月
0.0ヶ月
- 所在階
- 46階
- 間取り
- 1LDK +WIC
- 面積
- 47.31m2
New
定借
- 敷金
/礼金 -
2.0ヶ月
/
0.0ヶ月
- 仲介手数料
-
1.0ヶ月0.9ヶ月
34,600円お得
- フリーレント
キャッシュバック -
0.0ヶ月
0.0ヶ月
- 所在階
- 44階
- 間取り
- 1LDK +WIC +SIC
- 面積
- 54.31m2
New
定借
- 敷金
/礼金 -
1.0ヶ月
/
1.0ヶ月
- 仲介手数料
-
1.0ヶ月0.9ヶ月
40,000円お得
- フリーレント
キャッシュバック -
0.0ヶ月
0.0ヶ月
- 所在階
- 35階
- 間取り
- 2LDK +WIC
- 面積
- 70.98m2
ドゥ・トゥールへのお問い合わせはリテラプロパティーズまで
お問い合わせは、お電話かメールフォームより受け付けております。
東京都中央区銀座7-15-11 銀座7ビルディング10F
- 受付時間
- 10:00~20:00【年中無休】
物件募集に関する注意事項
※掲載情報が現況と異なる場合は、現況が優先となります。
※キャンペーン情報は予告なく変更・終了する場合がございます。詳細はお問い合わせください。
※部屋により敷金・礼金・キャンペーンの内容が異なる場合がございますので、詳しい情報は各部屋ページにてご確認ください。
※分譲賃貸は部屋によって所有者が異なる為、内装や設備が変更されている場合がございます。
※ペットの飼育やSOHO利用の可否に関しては、建物管理側が許可を出していても、所有者の意向により禁止とされている場合もございますのでご注意ください。

