ハーモニーレジデンス田町#002 4F
| 賃料 | 103,000円 | 管理費 | 10,000円 | 敷金 | 0.0ヶ月 | 礼金 | 1.0ヶ月 |
|---|---|---|---|---|---|---|---|
| キャッシュバック | 0.0ヶ月 | 仲介料 | 0.9ヶ月 | フリーレント | 0.0ヶ月 | ||
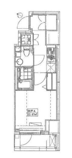
| 入居日 | 2025年12月上旬 | 間取り | 1K | 面積 | 22.87m2 | 階数 | 4/10階 |
|---|
| 方角 | 南西 | 築年月 | 2016年3月 | 交通 | JR山手線「田町」駅徒歩6分 詳細 |
|---|
| 賃料 | 103,000円 | 共益費/管理費 | 10,000円 |
|---|---|---|---|
| 敷金 | 0.0ヶ月 | 礼金 | 1.0ヶ月 |
| フリーレント | 0.0ヶ月 | 仲介料 | 0.9ヶ月 |
| キャッシュバック | 0.0ヶ月 | ||
| 間取り | 1K | 築年数 | 2016年3月 (築10年) |
| 方角 | 南西 | 賃借種別 | 普通賃貸借 |
| 建物階数 | 地上10階 | 建物構造 | RC造 |
| 占有面積 | 22.87m2 | 小学校エリア | 芝小学校 |
| 部屋1 | 洋室 0帖 |
|---|
東京都中央区銀座7-15-11 銀座7ビルディング10F
- 受付時間
- 10:00~20:00【年中無休】
ハーモニーレジデンス田町#002の物件概要
| 物件名 | ハーモニーレジデンス田町#002 | ||
|---|---|---|---|
| 物件種別 | マンション | 問合せ番号 | 6024 |
| 所在地 | 港区芝浦1-14-14 | ||
| 交通 |
JR山手線「田町」駅徒歩6分 JR京浜東北線「田町」駅徒歩6分 都営三田線「三田」駅徒歩6分 都営浅草線「三田」駅徒歩6分 ゆりかもめ「日の出」駅徒歩10分 |
||
| 物件特徴 | ペット可 分譲賃貸 | ||
| 備考 | |||
| 賃料 | 103,000円 | 共益費/管理費 | 10,000円 |
|---|---|---|---|
| 敷金 | 0.0ヶ月 | 礼金 | 1.0ヶ月 |
| フリーレント | 0.0ヶ月 | 仲介料 | 0.9ヶ月 |
| 更新料 | 0.5ヶ月 | ||
| 間取り | 1K | 築年数 | 2016年3月 (築10年) |
|---|---|---|---|
| 方角 | 南西 | 賃借種別 | 普通賃貸借 |
| 建物階数 | 地上10階 | 建物構造 | RC造 |
| 占有面積 | 22.87m2 | 小学校エリア | 芝小学校 |
| 入居日 | 2025年12月上旬 | ||
| 登録日 | 2026年01月14日 | 更新日 | 2025年10月03日 |
| 保険 | 要加入 | 保証会社 | 利用必須 |
| 取引形態 | 媒介 | ||
ハーモニーレジデンス田町#002の設備一覧
| 物件設備 |
|
|---|---|
| 部屋設備 |
|
ハーモニーレジデンス田町#002の地図
ハーモニーレジデンス田町#002の募集中の住戸一覧
ハーモニーレジデンス田町#002へのお問い合わせはリテラプロパティーズまで
お問い合わせは、お電話かメールフォームより受け付けております。
東京都中央区銀座7-15-11 銀座7ビルディング10F
- 受付時間
- 10:00~20:00【年中無休】
物件募集に関する注意事項
※掲載情報が現況と異なる場合は、現況が優先となります。
※キャンペーン情報は予告なく変更・終了する場合がございます。詳細はお問い合わせください。
※部屋により敷金・礼金・キャンペーンの内容が異なる場合がございますので、詳しい情報は各部屋ページにてご確認ください。
※分譲賃貸は部屋によって所有者が異なる為、内装や設備が変更されている場合がございます。
※ペットの飼育やSOHO利用の可否に関しては、建物管理側が許可を出していても、所有者の意向により禁止とされている場合もございますのでご注意ください。

