目黒第一マンションズ 1008
-
仲介手数料オフ
| 賃料 | 372,000円 | 管理費 | 8,000円 | 敷金 | 1.0ヶ月 | 礼金 | 1.0ヶ月 |
|---|---|---|---|---|---|---|---|
| 仲介料 | 0.0ヶ月 | フリーレント | 0.0ヶ月 | ||||
| 入居日 | 相談 | 間取り | 1LDK +WIC | 面積 | 44.9m2 | 階数 | 10/40階 |
|---|
| 方角 | 南西 | 築年月 | 2017年9月 | 交通 | JR山手線「目黒」駅徒歩3分 詳細 |
|---|
| 賃料 | 372,000円 | 共益費/管理費 | 8,000円 |
|---|---|---|---|
| 敷金 | 1.0ヶ月 | 礼金 | 1.0ヶ月 |
| フリーレント | 0.0ヶ月 | 仲介料 | 0.0ヶ月 |
| 間取り | 1LDK | 築年数 | 2017年9月 (築9年) |
| 方角 | 南西 | 賃借種別 | 定期借家 (2年間) |
| 建物階数 | 地上40階/地下2階 | 建物構造 | RC造 |
| 占有面積 | 44.9m2 | 小学校エリア | 第三日野小学校 |
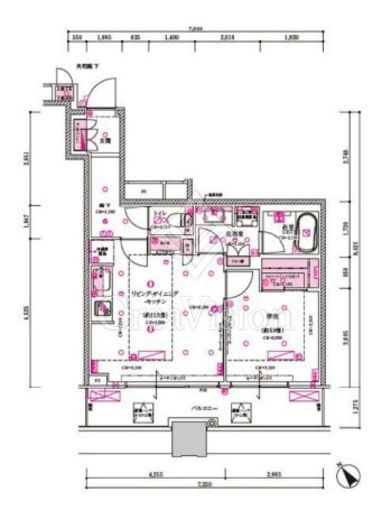
| 部屋1 | LDK 11帖 |
|---|---|
| 部屋2 | 洋室 6帖 |
東京都港区麻布十番1-7-1-6F
国土交通大臣(1)第10590号
国土交通大臣(1)第10590号
- 受付時間
- 10:00~19:00【水曜定休】
目黒第一マンションズの物件概要
| 物件名 | 目黒第一マンションズ | ||
|---|---|---|---|
| 物件種別 | マンション | 問合せ番号 | 7465 |
| 所在地 | 品川区上大崎3-1-2 | ||
| 交通 |
JR山手線「目黒」駅徒歩3分 東京メトロ南北線「目黒」駅徒歩3分 都営三田線「目黒」駅徒歩3分 |
||
| 物件特徴 | ペット可 タワー ハイクラス | ||
| 備考 |
■ペット可メモ 小型犬・猫計2匹まで(敷金1ヶ月積み増し) ■備考 トランク各住戸1区画付 |
||
| 賃料 | 372,000円 | 共益費/管理費 | 8,000円 |
|---|---|---|---|
| 敷金 | 1.0ヶ月 | 礼金 | 1.0ヶ月 |
| フリーレント | 0.0ヶ月 | 仲介料 | 0.0ヶ月 |
| 更新料 | 0.0ヶ月 | ||
| 間取り | 1LDK | 築年数 | 2017年9月 (築9年) |
|---|---|---|---|
| 方角 | 南西 | 賃借種別 | 定期借家 (2年間) |
| 建物階数 | 地上40階/地下2階 | 建物構造 | RC造 |
| 占有面積 | 44.9m2 | 小学校エリア | 第三日野小学校 |
| 入居日 | 相談 | ||
| 登録日 | 2026年04月17日 | 更新日 | 2026年04月17日 |
| 保険 | 要加入 | 保証会社 | 利用必須 |
| 取引形態 | 媒介 | ||
目黒第一マンションズの設備一覧
| 物件設備 |
|
|---|---|
| 部屋設備 |
|
目黒第一マンションズの地図
目黒第一マンションズの募集中の住戸一覧
目黒第一マンションズへのお問い合わせはリテラプロパティーズまで
お問い合わせは、お電話かメールフォームより受け付けております。
東京都港区麻布十番1-7-1-6F
国土交通大臣(1)第10590号
国土交通大臣(1)第10590号
- 受付時間
- 10:00~19:00【水曜定休】
物件募集に関する注意事項
※掲載情報が現況と異なる場合は、現況が優先となります。
※キャンペーン情報は予告なく変更・終了する場合がございます。詳細はお問い合わせください。
※部屋により敷金・礼金・キャンペーンの内容が異なる場合がございますので、詳しい情報は各部屋ページにてご確認ください。
※分譲賃貸は部屋によって所有者が異なる為、内装や設備が変更されている場合がございます。
※ペットの飼育やSOHO利用の可否に関しては、建物管理側が許可を出していても、所有者の意向により禁止とされている場合もございますのでご注意ください。

