レックス日本橋水天宮プレミアタワー 9F
| 賃料 | 175,000円 | 管理費 | 10,000円 | 敷金 | 1.0ヶ月 | 礼金 | 1.0ヶ月 |
|---|---|---|---|---|---|---|---|
| キャッシュバック | 0.0ヶ月 | 仲介料 | 0.9ヶ月 | フリーレント | 0.0ヶ月 | ||
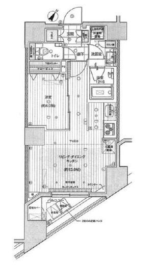
| 入居日 | 2026年1月上旬 | 間取り | 1LDK | 面積 | 40.37m2 | 階数 | 9/15階 |
|---|
| 方角 | 南 | 築年月 | 2012年12月 | 交通 | 東京メトロ半蔵門線「水天宮前」駅徒歩2分 詳細 |
|---|
| 賃料 | 175,000円 | 共益費/管理費 | 10,000円 |
|---|---|---|---|
| 敷金 | 1.0ヶ月 | 礼金 | 1.0ヶ月 |
| フリーレント | 0.0ヶ月 | 仲介料 | 0.9ヶ月 |
| キャッシュバック | 0.0ヶ月 | ||
| 間取り | 1LDK | 築年数 | 2012年12月 (築14年) |
| 方角 | 南 | 賃借種別 | 普通賃貸借 |
| 建物階数 | 地上15階 | 建物構造 | RC造 |
| 占有面積 | 40.37m2 | 小学校エリア | 有馬小学校 |
| 部屋1 | LDK 13帖 |
|---|---|
| 部屋2 | 洋室 4帖 |
東京都中央区銀座7-15-11 銀座7ビルディング10F
- 受付時間
- 10:00~20:00【年中無休】
レックス日本橋水天宮プレミアタワーの物件概要
| 物件名 | レックス日本橋水天宮プレミアタワー | ||
|---|---|---|---|
| 物件種別 | マンション | 問合せ番号 | 832 |
| 所在地 | 中央区日本橋箱崎町31-1 | ||
| 交通 |
東京メトロ半蔵門線「水天宮前」駅徒歩2分 東京メトロ日比谷線「人形町」駅徒歩9分 都営浅草線「人形町」駅徒歩9分 東京メトロ東西線「茅場町」駅徒歩10分 東京メトロ日比谷線「茅場町」駅徒歩10分 |
||
| 物件特徴 | 分譲賃貸 | ||
| 備考 | |||
| 賃料 | 175,000円 | 共益費/管理費 | 10,000円 |
|---|---|---|---|
| 敷金 | 1.0ヶ月 | 礼金 | 1.0ヶ月 |
| フリーレント | 0.0ヶ月 | 仲介料 | 0.9ヶ月 |
| 更新料 | 1.0ヶ月 | ||
| 間取り | 1LDK | 築年数 | 2012年12月 (築14年) |
|---|---|---|---|
| 方角 | 南 | 賃借種別 | 普通賃貸借 |
| 建物階数 | 地上15階 | 建物構造 | RC造 |
| 占有面積 | 40.37m2 | 小学校エリア | 有馬小学校 |
| 入居日 | 2026年1月上旬 | ||
| 登録日 | 2026年01月14日 | 更新日 | 2026年01月14日 |
| 保険 | 要加入 | 保証会社 | 利用必須 |
| 取引形態 | 媒介 | ||
レックス日本橋水天宮プレミアタワーの設備一覧
| 物件設備 |
|
|---|---|
| 部屋設備 |
|
レックス日本橋水天宮プレミアタワーの地図
レックス日本橋水天宮プレミアタワーの募集中の住戸一覧
レックス日本橋水天宮プレミアタワーへのお問い合わせはリテラプロパティーズまで
お問い合わせは、お電話かメールフォームより受け付けております。
東京都中央区銀座7-15-11 銀座7ビルディング10F
- 受付時間
- 10:00~20:00【年中無休】
物件募集に関する注意事項
※掲載情報が現況と異なる場合は、現況が優先となります。
※キャンペーン情報は予告なく変更・終了する場合がございます。詳細はお問い合わせください。
※部屋により敷金・礼金・キャンペーンの内容が異なる場合がございますので、詳しい情報は各部屋ページにてご確認ください。
※分譲賃貸は部屋によって所有者が異なる為、内装や設備が変更されている場合がございます。
※ペットの飼育やSOHO利用の可否に関しては、建物管理側が許可を出していても、所有者の意向により禁止とされている場合もございますのでご注意ください。

