タワー 検索結果一覧
所在階
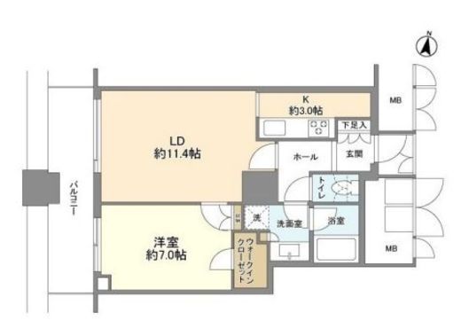
間取り
面積
賃料
管理費
管理費
敷金
礼金
礼金
仲介手数料
フリーレント
キャッシュバック
キャッシュバック
問合せ
所在階
間取り
面積
賃料
管理費
管理費
敷金
礼金
礼金
仲介手数料
フリーレント
キャッシュバック
キャッシュバック
問合せ
所在階
間取り
面積
賃料
管理費
管理費
敷金
礼金
礼金
仲介手数料
フリーレント
キャッシュバック
キャッシュバック
問合せ
| 所在地 | 東京都葛飾区金町6-2-1 |
|---|---|
| 築年月 | 2009年7月 (築17年) |
| 総階数 | 41階 |
| 交通 |
|
| 所在地 | 東京都墨田区京島1-1-2 |
|---|---|
| 築年月 | 2009年11月 (築17年) |
| 総階数 | 41階 |
| 交通 |
|


お気に入りに登録しました。