仲介手数料無料 検索結果一覧
| 所在地 | 東京都港区白金1-9-4 |
|---|---|
| 築年月 | 2017年12月 (築9年) |
| 総階数 | 10階 |
| 交通 |
|
所在階
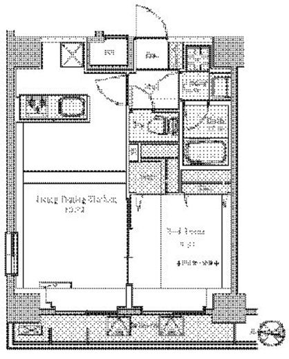
間取り
面積
賃料
管理費
管理費
敷金
礼金
礼金
仲介手数料
フリーレント
キャッシュバック
キャッシュバック
問合せ
所在階
間取り
面積
賃料
管理費
管理費
敷金
礼金
礼金
仲介手数料
フリーレント
キャッシュバック
キャッシュバック
問合せ
所在階
間取り
面積
賃料
管理費
管理費
敷金
礼金
礼金
仲介手数料
フリーレント
キャッシュバック
キャッシュバック
問合せ


お気に入りに登録しました。