新大久保駅の高級賃貸マンション一覧
所在階
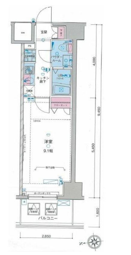
        間取り
        面積
        賃料
管理費
        管理費
敷金
礼金
        礼金
仲介手数料
        フリーレント
キャッシュバック
        キャッシュバック
問合せ
    所在階
        間取り
        面積
        賃料
管理費
        管理費
敷金
礼金
        礼金
仲介手数料
        フリーレント
キャッシュバック
        キャッシュバック
問合せ
    《リテラ限定》
    キャッシュバックキャンペーン!!
    ※キャンペーンはお部屋により異なります。
        ※詳細なキャンペーン内容はお問い合わせください。
        ※インボイス制度によりインボイス番号未登録の場合は、対象金額の税抜きでのお支払いとなります。
    
所在階
        間取り
        面積
        賃料
管理費
        管理費
敷金
礼金
        礼金
仲介手数料
        フリーレント
キャッシュバック
        キャッシュバック
問合せ
    

        
        
        
        
        
                        
                                    
                                    
                                    
                                    
                                    
                                    
                                    
                                    
                        
                                    
                                
                    
                    
                    
				
                    お気に入りに登録しました。