アルブル高輪 1102
| 賃料 | 158,000円 | 管理費 | 0円 | 敷金 | 1.0ヶ月 | 礼金 | 2.0ヶ月 |
|---|---|---|---|---|---|---|---|
| キャッシュバック | 0.0ヶ月 | 仲介料 | 0.9ヶ月 | フリーレント | 0.0ヶ月 | ||
| 入居日 | 2026年1月下旬 | 間取り | 1DK | 面積 | 34.99m2 | 階数 | 11/14階 |
|---|
| 方角 | 南 | 築年月 | 2003年7月 | 交通 | 東京メトロ南北線「白金高輪」駅徒歩7分 詳細 |
|---|
| 賃料 | 158,000円 | 共益費/管理費 | 0円 |
|---|---|---|---|
| 敷金 | 1.0ヶ月 | 礼金 | 2.0ヶ月 |
| フリーレント | 0.0ヶ月 | 仲介料 | 0.9ヶ月 |
| キャッシュバック | 0.0ヶ月 | ||
| 間取り | 1DK | 築年数 | 2003年7月 (築23年) |
| 方角 | 南 | 賃借種別 | 普通賃貸借 |
| 建物階数 | 地上14階/地下1階 | 建物構造 | SRC造 |
| 占有面積 | 34.99m2 | 小学校エリア | 高輪台小学校 |
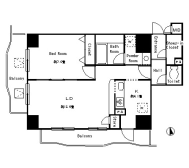
| 部屋1 | DK 7.2帖 |
|---|---|
| 部屋2 | 洋室 5.7帖 |
東京都中央区銀座7-15-11 銀座7ビルディング10F
- 受付時間
- 10:00~20:00【年中無休】
アルブル高輪の物件概要
| 物件名 | アルブル高輪 | ||
|---|---|---|---|
| 物件種別 | マンション | 問合せ番号 | 1542 |
| 所在地 | 港区高輪1-27-47 | ||
| 交通 |
東京メトロ南北線「白金高輪」駅徒歩7分 都営三田線「白金高輪」駅徒歩7分 東京メトロ南北線「白金台」駅徒歩10分 都営三田線「白金台」駅徒歩10分 |
||
| 物件特徴 | |||
| 備考 | |||
| 賃料 | 158,000円 | 共益費/管理費 | 0円 |
|---|---|---|---|
| 敷金 | 1.0ヶ月 | 礼金 | 2.0ヶ月 |
| フリーレント | 0.0ヶ月 | 仲介料 | 0.9ヶ月 |
| 更新料 | 1.0ヶ月 | ||
| 間取り | 1DK | 築年数 | 2003年7月 (築23年) |
|---|---|---|---|
| 方角 | 南 | 賃借種別 | 普通賃貸借 |
| 建物階数 | 地上14階/地下1階 | 建物構造 | SRC造 |
| 占有面積 | 34.99m2 | 小学校エリア | 高輪台小学校 |
| 入居日 | 2026年1月下旬 | ||
| 登録日 | 2026年01月14日 | 更新日 | 2025年11月09日 |
| 保険 | 要加入 | 保証会社 | 利用必須 |
| 取引形態 | 媒介 | ||
アルブル高輪の設備一覧
| 物件設備 |
|
|---|---|
| 部屋設備 |
|
アルブル高輪の地図
アルブル高輪の募集中の住戸一覧
アルブル高輪へのお問い合わせはリテラプロパティーズまで
お問い合わせは、お電話かメールフォームより受け付けております。
東京都中央区銀座7-15-11 銀座7ビルディング10F
- 受付時間
- 10:00~20:00【年中無休】
物件募集に関する注意事項
※掲載情報が現況と異なる場合は、現況が優先となります。
※キャンペーン情報は予告なく変更・終了する場合がございます。詳細はお問い合わせください。
※部屋により敷金・礼金・キャンペーンの内容が異なる場合がございますので、詳しい情報は各部屋ページにてご確認ください。
※分譲賃貸は部屋によって所有者が異なる為、内装や設備が変更されている場合がございます。
※ペットの飼育やSOHO利用の可否に関しては、建物管理側が許可を出していても、所有者の意向により禁止とされている場合もございますのでご注意ください。

