LAPIS 601
-
仲介手数料オフ
| 賃料 | 310,000円 | 管理費 | 0円 | 敷金 | 1.0ヶ月 | 礼金 | 1.0ヶ月 |
|---|---|---|---|---|---|---|---|
| キャッシュバック | 0.0ヶ月 | 仲介料 | 0.0ヶ月 | フリーレント | 0.0ヶ月 | ||
| 入居日 | 相談 | 間取り | 1LDK | 面積 | 57.87m2 | 階数 | 6/8階 |
|---|
| 方角 | 北東 | 築年月 | 2007年10月 | 交通 | 東京メトロ南北線「麻布十番」駅徒歩2分 詳細 |
|---|
| 賃料 | 310,000円 | 共益費/管理費 | 0円 |
|---|---|---|---|
| 敷金 | 1.0ヶ月 | 礼金 | 1.0ヶ月 |
| フリーレント | 0.0ヶ月 | 仲介料 | 0.0ヶ月 |
| キャッシュバック | 0.0ヶ月 | ||
| 間取り | 1LDK | 築年数 | 2007年10月 (築19年) |
| 方角 | 北東 | 賃借種別 | 普通賃貸借 |
| 建物階数 | 地上8階 | 建物構造 | RC造 |
| 占有面積 | 57.87m2 | 小学校エリア | 東町小学校 |
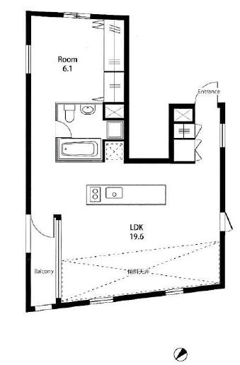
| 部屋1 | LDK 19.6帖 |
|---|---|
| 部屋2 | 洋室 6.1帖 |
東京都中央区銀座7-15-11 銀座7ビルディング10F
- 受付時間
- 10:00~20:00【年中無休】
LAPISの物件概要
| 物件名 | LAPIS | ||
|---|---|---|---|
| 物件種別 | マンション | 問合せ番号 | 1779 |
| 所在地 | 港区麻布十番2-14-3 | ||
| 交通 |
東京メトロ南北線「麻布十番」駅徒歩2分 都営大江戸線「麻布十番」駅徒歩2分 都営大江戸線「赤羽橋」駅徒歩10分 |
||
| 物件特徴 | 事務所&SOHO デザイナーズ | ||
| 備考 | |||
| 賃料 | 310,000円 | 共益費/管理費 | 0円 |
|---|---|---|---|
| 敷金 | 1.0ヶ月 | 礼金 | 1.0ヶ月 |
| フリーレント | 0.0ヶ月 | 仲介料 | 0.0ヶ月 |
| 更新料 | 1.0ヶ月 | ||
| 間取り | 1LDK | 築年数 | 2007年10月 (築19年) |
|---|---|---|---|
| 方角 | 北東 | 賃借種別 | 普通賃貸借 |
| 建物階数 | 地上8階 | 建物構造 | RC造 |
| 占有面積 | 57.87m2 | 小学校エリア | 東町小学校 |
| 入居日 | 相談 | ||
| 登録日 | 2026年01月14日 | 更新日 | 2025年10月25日 |
| 保険 | 要加入 | 保証会社 | 利用必須 |
| 取引形態 | 媒介 | ||
LAPISの設備一覧
| 物件設備 |
|
|---|---|
| 部屋設備 |
|
LAPISの地図
LAPISの募集中の住戸一覧
所在階
間取り
面積
賃料
管理費
管理費
敷金
礼金
礼金
仲介手数料
フリーレント
キャッシュバック
キャッシュバック
問合せ
LAPISへのお問い合わせはリテラプロパティーズまで
お問い合わせは、お電話かメールフォームより受け付けております。
東京都中央区銀座7-15-11 銀座7ビルディング10F
- 受付時間
- 10:00~20:00【年中無休】
物件募集に関する注意事項
※掲載情報が現況と異なる場合は、現況が優先となります。
※キャンペーン情報は予告なく変更・終了する場合がございます。詳細はお問い合わせください。
※部屋により敷金・礼金・キャンペーンの内容が異なる場合がございますので、詳しい情報は各部屋ページにてご確認ください。
※分譲賃貸は部屋によって所有者が異なる為、内装や設備が変更されている場合がございます。
※ペットの飼育やSOHO利用の可否に関しては、建物管理側が許可を出していても、所有者の意向により禁止とされている場合もございますのでご注意ください。

