イプセ代々木レジデンス
(更新日:03月22日)
-
礼金0
イプセ代々木レジデンスの募集中住戸一覧
管理費
礼金
イプセ代々木レジデンスの物件概要
| 物件名 | イプセ代々木レジデンス | ||
|---|---|---|---|
| 物件種別 | マンション | 問合せ番号 | 21761 |
| 状態 | 空きあり | 総戸数 | 21戸 |
| 所在地 | 渋谷区代々木1-7-5 | ||
| 交通 |
JR山手線「代々木」駅徒歩6分 JR中央・総武線「代々木」駅徒歩6分 都営大江戸線「代々木」駅徒歩6分 JR山手線「新宿」駅徒歩11分 都営新宿線「新宿」駅徒歩11分 |
||
| 物件特徴 | 新築 低層 | ||
| 賃料 | 151000円 - 363000円 | 共益費/管理費 | 10000円 - 20000円 |
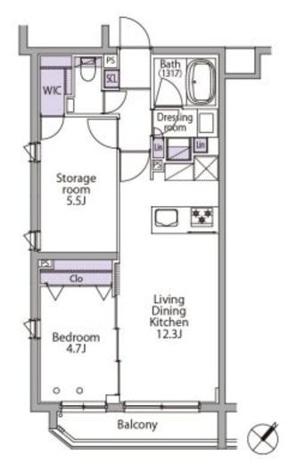
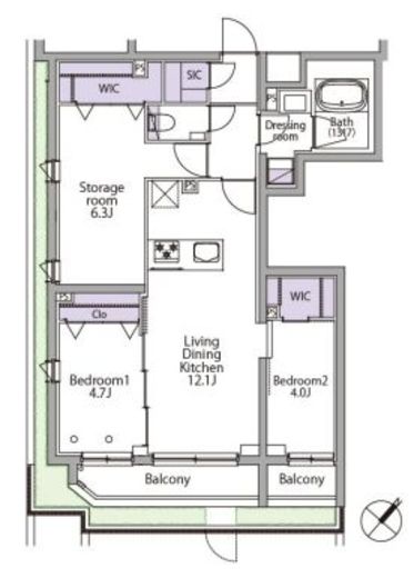
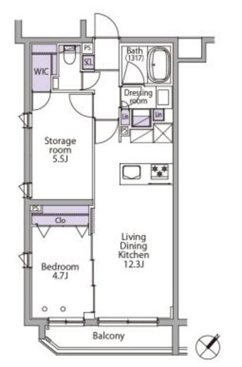
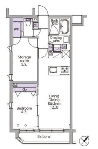
| 間取 | 1LDK - 2SLDK | 占有面積 | 26.06m2 - 66.45m2 |
| 建物階数 | 地上5階 | 建物構造 | RC造 |
| 築年数 | 2026年2月 (新築) | 小学校エリア | 代々木山谷小学校 |
| 保険 | 要加入 | 保証会社 | 利用必須 |
| 取引形態 | 媒介 | ||
| 備考 | 【バイク置き場】有 【駐輪場】有 |
||
イプセ代々木レジデンスの設備一覧
| 物件設備 |
|
|---|
リテラプロパティーズまで
国土交通大臣(1)第10590号
- 受付時間
- 10:00~19:00【水曜定休】
イプセ代々木レジデンスの地図
#イプセ代々木レジデンス は、2026年2月築の物件で、地上5階建てです。
ただいま、礼金なしでお得な物件です。
所在地は渋谷区代々木1-7-5で、最寄り駅はJR山手線代々木駅で徒歩6分の距離にあり利便性の良い立地です。
オートロックが付いていますので、夜間も女性の方が安心して生活いただけます。エレベーター付きなので、荷物が多い日や上層階への移動もスムーズです。宅配ボックスが設置されていますので、不在時でも安心して荷物を受け取りいただけます。TV付きインターホンが設置されていますので、来訪者の確認もスムーズで安心です。自転車置き場がありますので、お買い物など近場の移動も便利に利用できます。バイク専用の駐輪スペースがありますので、ライダーの方にもおすすめです。敷地内にゴミ置き場があり、ゴミ出しがしやすく日々の負担を減らせます。インターネット利用が可能で、在宅ワークや動画視聴も快適に行えます。
現在イプセ代々木レジデンスの空室状況は、総戸数が21戸中21戸のお部屋が賃貸募集中で、
賃料は151000円 〜 363000円の部屋があり、間取は1LDK 〜 2SLDKのお部屋があり、面積は26.06㎡ 〜 66.45㎡の賃貸募集がございます。
イプセ代々木レジデンス 当社提携会社のWEBサイトはこちら
※掲載情報が現況と異なる場合は、現況が優先となります。
※キャンペーン情報は予告なく変更・終了する場合がございます。詳細はお問い合わせください。
※部屋により敷金・礼金・キャンペーンの内容が異なる場合がございますので、詳しい情報は各部屋ページにてご確認ください。
※分譲賃貸は部屋によって所有者が異なる為、内装や設備が変更されている場合がございます。
※ペットの飼育やSOHO利用の可否に関しては、建物管理側が許可を出していても、所有者の意向により禁止とされている場合もございますのでご注意ください。
イプセシリーズ
-
千代田区
-
渋谷区
-
文京区
-
世田谷区
-
中野区
-
杉並区
-
江東区
-
台東区
-
豊島区
-
北区
-
荒川区
-
板橋区
-
練馬区
-
足立区
-
葛飾区
-
江戸川区



お気に入りに登録しました。