パークタワー晴海 15F
| 賃料 | 240,000円 | 管理費 | 0円 | 敷金 | 1.0ヶ月 | 礼金 | 1.0ヶ月 |
|---|---|---|---|---|---|---|---|
| キャッシュバック | 0.0ヶ月 | 仲介料 | 0.9ヶ月 | フリーレント | 0.0ヶ月 | ||
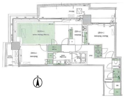
| 入居日 | 2026年1月下旬 | 間取り | 1LDK +WIC | 面積 | 42.57m2 | 階数 | 15/48階 |
|---|
| 方角 | 北 | 築年月 | 2019年2月 | 交通 | 都営大江戸線「月島」駅徒歩12分 詳細 |
|---|
| 賃料 | 240,000円 | 共益費/管理費 | 0円 |
|---|---|---|---|
| 敷金 | 1.0ヶ月 | 礼金 | 1.0ヶ月 |
| フリーレント | 0.0ヶ月 | 仲介料 | 0.9ヶ月 |
| キャッシュバック | 0.0ヶ月 | ||
| 間取り | 1LDK | 築年数 | 2019年2月 (築7年) |
| 方角 | 北 | 賃借種別 | 普通賃貸借 |
| 建物階数 | 地上48階/地下1階 | 建物構造 | RC造 |
| 占有面積 | 42.57m2 | 小学校エリア | 月島第三小学校 |
| 部屋1 | LDK 11.4帖 |
|---|---|
| 部屋2 | 洋室 4.7帖 |
東京都中央区銀座7-15-11 銀座7ビルディング10F
- 受付時間
- 10:00~20:00【年中無休】
パークタワー晴海の物件概要
| 物件名 | パークタワー晴海 | ||
|---|---|---|---|
| 物件種別 | マンション | 問合せ番号 | 8122 |
| 所在地 | 中央区晴海2-2-42 | ||
| 交通 |
都営大江戸線「月島」駅徒歩12分 東京メトロ有楽町線「月島」駅徒歩12分 都営大江戸線「勝どき」駅徒歩15分 |
||
| 物件特徴 | 分譲賃貸 タワー ハイクラス | ||
| 備考 | |||
| 賃料 | 240,000円 | 共益費/管理費 | 0円 |
|---|---|---|---|
| 敷金 | 1.0ヶ月 | 礼金 | 1.0ヶ月 |
| フリーレント | 0.0ヶ月 | 仲介料 | 0.9ヶ月 |
| 更新料 | 1.0ヶ月 | ||
| 間取り | 1LDK | 築年数 | 2019年2月 (築7年) |
|---|---|---|---|
| 方角 | 北 | 賃借種別 | 普通賃貸借 |
| 建物階数 | 地上48階/地下1階 | 建物構造 | RC造 |
| 占有面積 | 42.57m2 | 小学校エリア | 月島第三小学校 |
| 入居日 | 2026年1月下旬 | ||
| 登録日 | 2026年01月14日 | 更新日 | 2025年11月07日 |
| 保険 | 要加入 | 保証会社 | 利用必須 |
| 取引形態 | 媒介 | ||
パークタワー晴海の設備一覧
| 物件設備 |
|
|---|---|
| 部屋設備 |
|
パークタワー晴海の地図
パークタワー晴海の募集中の住戸一覧
所在階
間取り
面積
賃料
管理費
管理費
敷金
礼金
礼金
仲介手数料
フリーレント
キャッシュバック
キャッシュバック
問合せ
New
定借
- 敷金
/礼金 -
1.0ヶ月
/
1.0ヶ月
- 仲介手数料
-
1.0ヶ月0.9ヶ月
25,000円お得
- フリーレント
キャッシュバック -
0.0ヶ月
0.0ヶ月
- 所在階
- 26階
- 間取り
- 1LDK +WIC
- 面積
- 43.33m2
New
- 敷金
/礼金 -
1.0ヶ月
/
1.0ヶ月
- 仲介手数料
-
1.0ヶ月0.9ヶ月
37,500円お得
- フリーレント
キャッシュバック -
0.0ヶ月
0.0ヶ月
- 所在階
- 8階
- 間取り
- 3LDK +WIC +SIC
- 面積
- 71.63m2
New
- 敷金
/礼金 -
1.0ヶ月
/
1.0ヶ月
- 仲介手数料
-
1.0ヶ月0.9ヶ月
40,000円お得
- フリーレント
キャッシュバック -
0.0ヶ月
0.0ヶ月
- 所在階
- 21階
- 間取り
- 3LDK +WIC +SIC
- 面積
- 74.05m2
パークタワー晴海へのお問い合わせはリテラプロパティーズまで
お問い合わせは、お電話かメールフォームより受け付けております。
東京都中央区銀座7-15-11 銀座7ビルディング10F
- 受付時間
- 10:00~20:00【年中無休】
物件募集に関する注意事項
※掲載情報が現況と異なる場合は、現況が優先となります。
※キャンペーン情報は予告なく変更・終了する場合がございます。詳細はお問い合わせください。
※部屋により敷金・礼金・キャンペーンの内容が異なる場合がございますので、詳しい情報は各部屋ページにてご確認ください。
※分譲賃貸は部屋によって所有者が異なる為、内装や設備が変更されている場合がございます。
※ペットの飼育やSOHO利用の可否に関しては、建物管理側が許可を出していても、所有者の意向により禁止とされている場合もございますのでご注意ください。

