永田町駅の高級賃貸マンション一覧
所在階
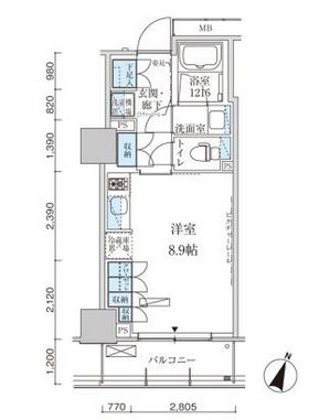
間取り
面積
賃料
管理費
管理費
敷金
礼金
礼金
仲介手数料
フリーレント
キャッシュバック
キャッシュバック
問合せ
所在階
間取り
面積
賃料
管理費
管理費
敷金
礼金
礼金
仲介手数料
フリーレント
キャッシュバック
キャッシュバック
問合せ


お気に入りに登録しました。