コンフォリア高島平
(更新日:04月07日)
-
仲介手数料オフ
-
礼金0
コンフォリア高島平のオススメ共用施設
|
|
コンフォリア高島平の募集中住戸一覧
管理費
礼金
コンフォリア高島平の物件概要
| 物件名 | コンフォリア高島平 | ||
|---|---|---|---|
| 物件種別 | マンション | 問合せ番号 | 20488 |
| 状態 | 空きあり | 総戸数 | 76戸 |
| 所在地 | 板橋区新河岸2-1-40 | ||
| 交通 |
都営三田線「高島平」駅徒歩10分 |
||
| 物件特徴 | ペット可 | ||
| 賃料 | 198000円 - 206000円 | 共益費/管理費 | 15000円 |
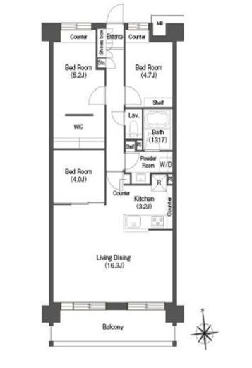
| 間取 | 2LDK - 3LDK | 占有面積 | 75.6m2 |
| 建物階数 | 地上8階 | 建物構造 | RC造 |
| 築年数 | 1995年9月 (築31年) | 小学校エリア | 新河岸小学校 |
| 保険 | 要加入 | 保証会社 | 利用必須 |
| 取引形態 | 媒介 | ||
| 備考 | 【駐車場】56台 【バイク置き場】20台 【駐輪場】138台 【トランクルーム】37台 【共用施設】 ・ドッグラン ・シェア菜園 ・ラウンジ ・ワークスペース(テレワークブース有り) ・プレイルーム ・ペット足洗い場 |
||
コンフォリア高島平の設備一覧
| 物件設備 |
|
|---|
リテラプロパティーズまで
国土交通大臣(1)第10590号
- 受付時間
- 10:00~19:00【水曜定休】
コンフォリア高島平の地図
#コンフォリア高島平 は、1995年9月築の物件で、地上8階建てです。
ただいま、礼金なし、仲介手数料無料でお得な物件です。
所在地は板橋区新河岸2-1-40で、最寄り駅は都営三田線高島平駅で徒歩10分の距離にあり利便性の良い立地です。
オートロックが付いていますので、夜間も女性の方が安心して生活いただけます。エレベーター付きなので、荷物が多い日や上層階への移動もスムーズです。宅配ボックスが設置されていますので、不在時でも安心して荷物を受け取りいただけます。TV付きインターホンが設置されていますので、来訪者の確認もスムーズで安心です。駐車場が用意されていますので、車通勤の方やご家族でお住まいの方にオススメです。車幅の大きな大型車も停められる駐車場があります。自転車置き場がありますので、お買い物など近場の移動も便利に利用できます。共用ラウンジがありますので、ゆったりとくつろげる空間でお過ごしいただけます。お子様の遊び場としてキッズルームが設けられていますので、親子で過ごしやすい環境です。敷地内にゴミ置き場があり、ゴミ出しがしやすく日々の負担を減らせます。インターネット利用が可能で、在宅ワークや動画視聴も快適に行えます。
現在コンフォリア高島平の空室状況は、総戸数が76戸中4戸のお部屋が賃貸募集中で、
賃料は198000円 〜 206000円の部屋があり、間取は2LDK 〜 3LDKのお部屋があり、面積は75.6㎡の賃貸募集がございます。
コンフォリア高島平 当社提携会社のWEBサイトはこちら
※掲載情報が現況と異なる場合は、現況が優先となります。
※キャンペーン情報は予告なく変更・終了する場合がございます。詳細はお問い合わせください。
※部屋により敷金・礼金・キャンペーンの内容が異なる場合がございますので、詳しい情報は各部屋ページにてご確認ください。
※分譲賃貸は部屋によって所有者が異なる為、内装や設備が変更されている場合がございます。
※ペットの飼育やSOHO利用の可否に関しては、建物管理側が許可を出していても、所有者の意向により禁止とされている場合もございますのでご注意ください。
コンフォリアシリーズ
-
港区
-
中央区
-
新宿区
-
目黒区
-
品川区
-
世田谷区
-
大田区
-
江東区
-
台東区
-
墨田区
-
豊島区
-
練馬区
-
足立区
-
葛飾区
コンフォリア高島平の周辺物件
| 交通 | 板橋駅 徒歩6分 |
|---|---|
| 賃料 | 105000円 |
| 専有面積 | 25.45m2 - 25.49m2 |
| 間取り | 1K - 1K |
| 築年月 | 2020年3月 (築6年) |
| 交通 | 池袋駅 徒歩10分 |
|---|---|
| 賃料 | 98000円 - 104000円 |
| 専有面積 | 26.14m2 - 26.15m2 |
| 間取り | 1K - 1K |
| 築年月 | 2019年8月 (築7年) |
| 交通 | 中板橋駅 徒歩14分 |
|---|---|
| 賃料 | 104000円 - 105000円 |
| 専有面積 | 25.6m2 |
| 間取り | 1K - 1K |
| 築年月 | 2022年5月 (築4年) |



お気に入りに登録しました。